Below are some exmaples of soft landscaping schemes I have produced using technical drawings, which have formed part of planning applications for new build developments. The level of detail shown in each drawing varies depending on the nature of the project.
Please click on the link to open the design if it is not already visable.
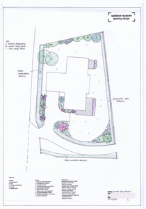
A. To accompany a planning application for a development of 2 new dwellings in a conservation area in East Devon, the plans show boundary planting, existing trees and shrubs and positioning of new borders within the garden.
Both plots have a plant list detailing shrubs to be used and possible herbaceous planting within these new borders.
The application was successful and both houses were completed.
B. This simple planting plan was created for a project in Jersey in collaboration with a local architect. The drawing is overlayed onto the site layout drawing to allow the client to see exactly how the planting fits around the new building. The client has since planted the site themselves.
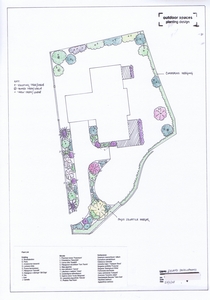
C. This plan was submitted with a planning application for a new dwelling in a conservation area. Particular detail was paid to the boundary planting, both existing and new, and the preservation of the many orchard trees on site.
D. Using an architect's site drawings I designed the garden layout and planting scheme for a new dwelling to be built within the plot of an existing house. Many considerations had to be taken into account such as preserving a great view, planting on an exposed site, long-term maintenance and the constraints imposed by planners at the local council.
The application was approved and the project has since been completed.
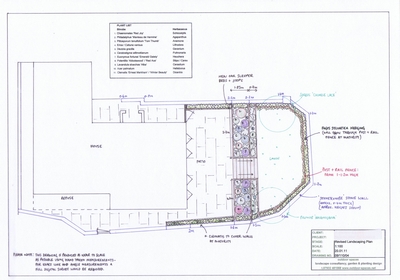
E. This is part of a draft plan that was then submitted to the council with an application for approval of a new dwelling in East Devon. There we specific constraints on many trees within the site, and a fantastic estuary view needed to be preserved. New pedestrian access was created incorporating low maintenance planting and ensuring the garden would be suitable for family use.
The application was successful and the building and gardens were completed.
F. This basic plan was used in an application to show planners what planting would be retained on the site of a proposed new dwelling in East Devon. Boundary detail was of great significance as the site was fully enclosed by the surrounding properties and lay within an ANOB.
It has since been approved and construction is nearing completion.
G. This plan was submitted as part of an application for a new dwelling within the garden of an existing house on the Exe estuary. The drawing shows planners that consideration had been made to create areas of soft landscaping alongside the provision for parking, to soften the appearance of the site from the road and aid drainage on site.
Approval was given and the project is nearing completion.
H. The application for this proposed dwelling in a conservation area in East Devon required details of both new planting and that which was being retained. Effort was made to ensure the planting along the boundary and in the front garden was in keeping with neighbouring gardens to preserve the street scene of the local area. The proposals were approved and the house has since been completed.
I. This plan was submitted to the council by a developer proposing to build 2 new dwellings on the site of an existing bungalow in a small village on the Exe estuary. Although minimal in detail, it demonstrates consideration for both privacy from and for neighbours, softening of hard landscaping areas and preserving the fantastic river views.

